Elektrokonstruktion per Knopfdruck – mit ERP-Integration
Die Elektroplanung erfolgt bei Grundfos jetzt per Knopfdruck: Der Projektierer gibt die gewünschte Pumpenleistung, die länderspezifische Norm, technische Daten und Optionen an – und die gesamte Dokumentation wird auf Basis von EPLAN Engineering Configuration vollständig automatisch generiert.
Grundfos gehört zu den drei größten Pumpenherstellern weltweit und fertigt z.B. Druckerhöhungsanlagen für die Trinkwasserversorgung. Dabei ist die Varianz hoch, aber endlich. Die Elektroplanung erfolgt hier jetzt per Knopfdruck: Der Projektierer gibt die gewünschte Pumpenleistung, die länderspezifische Norm, technische Daten und Optionen an – und die gesamte Dokumentation wird auf Basis des EEC von EPLAN vollständig automatisch generiert. Nicht nur die Schaltpläne und die mechanischen Zeichnungen sind integriert, sondern auch das ERP-System ist an den durchgängigen Datenfluss angebunden – und das in 27 Sprachen. Rund 600 Millionen Menschen weltweit werden über Grundfos-Pumpen mit Trinkwasser versorgt. Das dänische Unternehmen gehört mit 19.500 Mitarbeitern, weltweiter Präsenz und 16 Millionen Pumpen pro Jahr zu den größten Anbietern im internationalen Markt für Pumpen und Pumpensysteme, und die Trinkwasserversorgung ist nur einer der Anwendungsbereiche, in denen Grundfos eine starke Marktposition einnimmt.
Druckerhöhungsanlagen für den Weltmarkt
Ein „klassisches“ Produkt für diesen Einsatzfall sind die Druckerhöhungsanlagen der Serie Hydro MPC. Sie bestehen aus zwei bis sechs Pumpen und einem Control Panel. Die integrierte Regeleinheit gewährleistet, dass zu jeder Zeit und bei jedem Bedarf die benötigte Anzahl der Pumpen läuft. Neben der Bereitstellung der Förderleistung haben diese Anlagen auch die Aufgabe, den Druck im hauseigenen Trinkwassersystem konstant zu halten – unabhängig von Netzdruckveränderungen und schwankenden Entnahmemengen. Diese Druckerhöhungsanlagen bietet Grundfos in siebenstelliger Stückzahl und großer Variantenvielfalt. Der Anwender kann aus unterschiedlichen Leistungsklassen und diversen Optionen wählen. Dazu gehören, um nur Beispiele zu nennen, ein drehzahlgeregelter Antrieb und ein Lasttrennschalter, aber auch kleinere Extras wie eine Betriebsmeldeleuchte oder die Ausgabe eines akustischen Alarms im Fehlerfall. Darüber hinaus müssen die länderspezifischen Richtlinien und Normen (EU, UL…) sowie die Kommunikations-Schnittstellen berücksichtigt werden.
Konfigurator auf EEC-Basis: Engineering-Dokumente werden automatisch generiert
Die Kombination von Pumpentyp und –anzahl, Normen und Optionen ergibt eine hohe, aber endliche Varianz der Druckerhöhungsanlagen. Dieses Variantenmanagement ist eine Herausforderung, die Grundfos jetzt ganz grundsätzlich und auf neue Weise gelöst hat. Gemeinsam mit EPLAN hat das Unternehmen auf der Basis von EPLAN Engineering Configuration (EEC) ein Konfigurationssystem entwickelt, das diese Aufgabe erheblich vereinfacht. In sehr enger Zusammenarbeit mit den Consultants von EPLAN wird nun der weltweite Rollout der EEC-Einführung innerhalb der Grundfos-Organisation koordiniert. Der Elektro-Konstrukteur, der das Control Panel für eine kundenspezifische Druckerhöhungsanlage projektiert, arbeitet künftig auf einer Plattform, die so gar nicht nach CAD-System aussieht: Das webbasierte Menu führt ihn in wenigen Schritten durch die Auswahl der einzelnen Varianten, beginnend mit der gewünschten Landesnorm sowie der Anzahl der Pumpen und ihrer jeweiligen Leistung. Die Optionen sind in funktionale Gruppen wie zum Beispiel Safety und Kommunikation zusammengefasst und brauchen nur angeklickt zu werden. Auch die Sprachen, in der die Dokumentation ausgegeben wird, stehen zur Wahl – 27 sind möglich.
Mechanische Konstruktion
Das Ergebnis: Nach wenigen Klicks hat der Konstrukteur, der sich die vom Vertrieb bereitgestellten Projektdaten aufruft, das System konfiguriert und damit im Hintergrund zugleich die komplette elektrotechnische Dokumentation erzeugt – inklusive Schaltplänen, Stücklisten und Klassifizierungsdaten. Auch die Datensätze für die Control Panel Produktion und die Kabelkonfektionierung sind dann bereits vorgegeben und können von den jeweiligen Anlagen eingelesen werden, die z.B. vollautomatisch die Blechbearbeitung (Bohren, Fräsen) der Schaltschränke übernehmen. Das klingt einfach und ist es auch. Die Prozesse im Hintergrund hingegen sind komplex, wie Bjarne Lønvig, Senior Technical Lead, an einem Beispiel erläutert: „Wenn der Konstrukteur im Konfigurationssystem einen Haken bei der Option ´Amperemeter´ setzt, muss dies nicht nur im Schaltplan berücksichtigt werden, sondern auch in der mechanischen Konstruktion des Schaltschrankes, weil in die Tür eine Öffnung für das Display geschnitten werden muss.“ Ggfs. muss dafür die Größe des Schranks verändert werden.
Tiefe Integration – umfangreiche Vorarbeiten
EPLAN Engineering Configuration stellt die technische Basis zur Integration bereit. Diese mechatronische Konfigurationslösung interagiert mit der EPLAN Plattform und den beteiligten Autorensystemen EPLAN Electric P8 (Elektrokonstruktion) und EPLAN Pro Panel (3D-Schaltschrankaufbau). Im EEC sind die funktionalen „Bausteine“ der zu planenden Anlagen hinterlegt, die im Sinne der mechatronischen Konstruktion ausgewählt und automatisch verbunden werden. Das gilt für den mechanischen Teil der Konstruktion ebenso wie für den elektrotechnischen Part. Ausgegeben werden Schaltplan und 3D-Schaltschrankdaten dann als EPLAN-Datensätze und im neutralen PDF-Format. Um diese ganz erhebliche Vereinfachung zu erreichen, wurde zunächst das funktionale Regelwerk über den Aufbau der jeweiligen Grundfos-Produktreihen im mechatronischen Baukasten von EEC angelegt. Bjarne Lønvig: „Es gibt mehr als 750 Basis-Konfigurationen für Control Panel, die alle passen müssen. Dafür haben wir mehr als 150 Makros definiert und 25 Optionen. Das Programmieren der hohen geforderten Varianz von Kombinationen war eine besondere Herausforderung.“ Dabei konnten die Verantwortlichen allerdings auf Erfahrung im eigenen Hause zurückgreifen. Alexander Grenda, Senior Conguration Engineer am Grundfos-Standort Wahlstedt: „Wir hatten schon seit über 20 Jahren einen Konfigurator im Einsatz, der durch einen „state of the art“ Konfigurator ersetzt werden sollte. Das neue System haben wir unter anderem mit dem Ziel entwickelt, eine Verbindung zum ERP zu schaffen und damit einen wirklich durchgängigen Datenfluss.“
Innovation: Integration von E-CAD und SAP
Dieses Ziel wurde erreicht: Die im EEC automatisch generierten Konstruktionsdaten werden – sobald die Konstruktion abgeschlossen ist – ans ERP-System von Grundfos (SAP) übermittelt und von allen kaufmännischen Bereichen wie Einkauf und Lagerverwaltung weiterverarbeitet. Darüber hinaus bietet das neue Konfigurationssystem auch weitere Vorteile, zum Beispiel durch die Integration von EPLAN Pro Panel. Mirco Wünsch, EEC Configuration Engineer: „Die Control Panel Konstruktion erfolgt in 3D, so wird das ´packaging´ der Bauelemente selbsttätig optimiert. Das hat in der Praxis oft zur Folge, dass wir einen kleineren Schaltschrank wählen können – das freut die Kunden, weil der Bauraum oft begrenzt ist.“ Das ist umso wichtiger, weil die Elektrotechnik gerade in Zeiten energieeffizienter, geregelter Pumpenantriebe immer komplexer wird: Standardmäßig sind die Rittal-Schaltschränke, die Grundfos verwendet, bis zu 4,8 Meter breit. Und da das EEC auch die Wärmelasten berechnet, erfolgt die bedarfsgerechte Dimensionierung und Auswahl des Filterlüfters ebenso automatisch. Dasselbe gilt für die Erzeugung von Bohrbildern etc. für die Control Panel Produktion. Hier kommen Perforex-Maschinen aus dem neuen Geschäftsbereich Rittal Automation zum Einsatz.
Stand der Dinge: Kurz vor dem weltweiten Rollout
Die Zusammenarbeit zwischen EPLAN und Grundfos mit dem Ziel der Konfigurations-Entwicklung startete 2012 mit der Entscheidung für EEC. Bjarne Lønvig: „2013 haben wir mit der Modellierung des Systems begonnen, seit Mitte 2014 laufen Pilotsysteme und inzwischen haben wir das Konfigurationssystem am ersten Standort – in Wahlstedt – installiert. Hier findet die Control Panel Produktion für große Teile Europas statt. Im nächsten Schritt wird das System in den anderen weltweiten Standorten implementiert, beginnend mit China.“ Da das Konfigurationssystem auf einem Webserver im Grundfos-Intranet läuft, ist es weltweit einsetzbar und der Anwender arbeitet immer mit der aktuellsten Version.
Der Aufwand lohnt
Für Grundfos steht außer Frage, dass sich die Vorarbeit – die insbesondere aus dem „Füttern“ des EEC mit den Konstruktions- und Komponentendaten bestand – schnell lohnt. Bjarne Lønvig: „Wir bilden die ganze Prozesskette der Elektro- und Control Panel Konstruktion ab, automatisieren die Konstruktion und integrieren durch die Verbindung zum ERP auch Konstruktion, Produktion und die kaufmännischen Prozesse. Das erleichtert uns die Arbeit ganz erheblich, vereinheitlicht das Design der Control Panel und verbessert auch deren Konstruktion.“

Grundfos-Pumpen liefern den nötigen Druck für die Wasserversorgung von rund 600 Millionen Menschen weltweit. Das Bild zeigt eine Druckerhöhungsanlage.

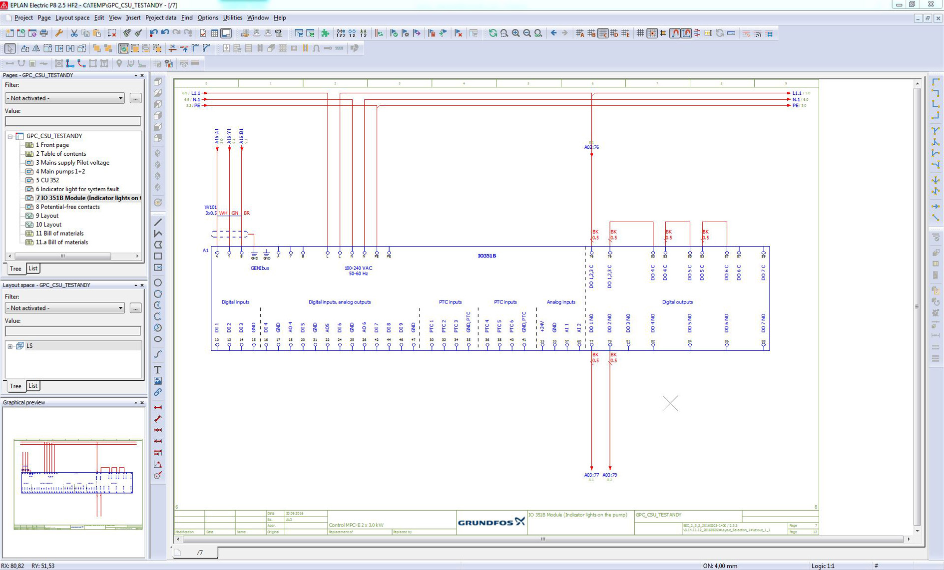
Für die Projektierung der Control Panel von Druckerhöhungsanlagen nutzt Grund-fos ein Konfigurationssystem, das auf der Basis von EPLAN Engineering Configuration arbeitet.

Das Konfigurationssystem, das auf EPLAN Engineering Configuration basiert, sind die funktionalen „Bausteine“ der zu planenden Anlagen hinterlegt, die im Sinne der mechatronischen Konstruktion ausgewählt und automatisch verbunden werden.



